Обяви 0 За нас Контакти
Продава 2-СТАЕН
град София, Люлин 9
184 500 €
360 850.64 лв.

(2 005 €, 3 921.44 лв./m2)
Цената е с включено ДДС
История на цената
Коригирана в 21:20 на 23 април, 2026 год.
Обявата е посетена 1950 пъти.
Площ:
92 m2
Етаж:
5-ти от 5
Газ:
НЕ
ТEЦ:
НЕ
Строителство:
Тухла, Ще бъде въведен в експлоатация 2027 г.

Описание на имота:


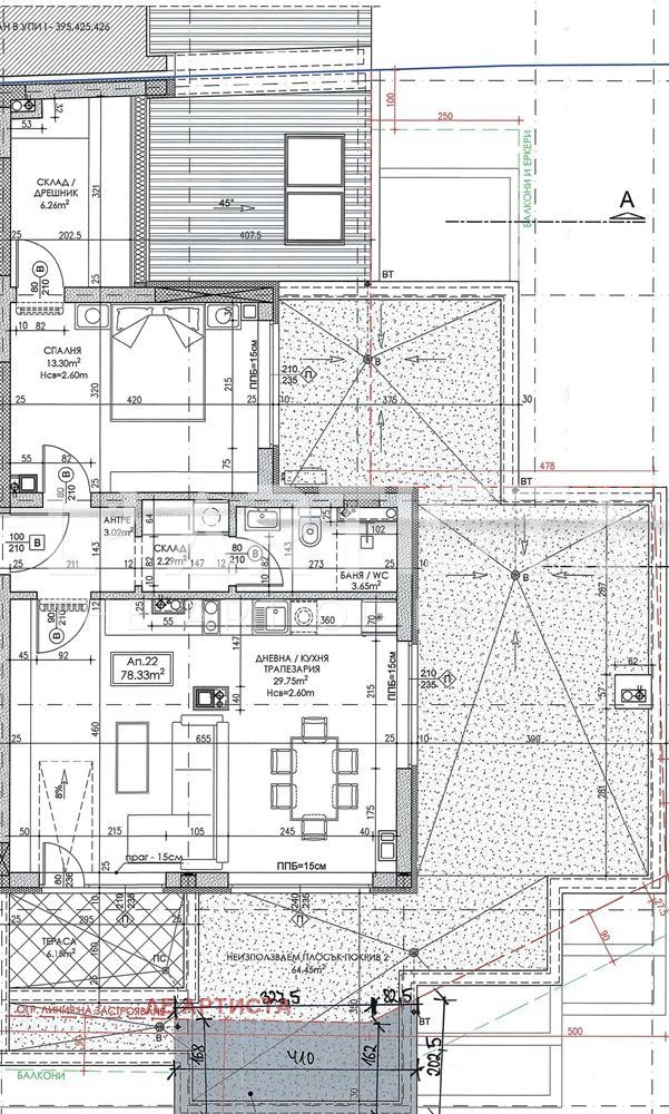
Без комисиона от купувача!Двустаен тухлен апартамент 22 със застроена площ от 78.33кв.м.(91.30кв.м. с общите части).

Реф. 647

Състои се от: антре/3.02кв.м./, дневна с кухненски бокс/29.75кв.м./, спалня/13.30кв.м./, дрешник/6.26кв.м./, склад/2.29кв.м./, баня с тоалетна/3.65кв.м./ и покривна тераса/64.45кв.м./. Изложение югоизток. Към апартамента се предлага паркомясто, гараж и склад, които се заплащат допълнително. Жилището се предава на фина мазилка и замазка, хоризонтална и вертикална инсталация до тапа; монтирана входна врата.

Сградата е проектирана на пет етажа с функционални двустайни и тристайни апартаменти. Партерен етаж с гаражи и един апартамент с голям двор .

Сутерен, в който са разположени гаражи, паркоместа и складове. Автомобилен асансьор за подземен гараж.

Фасада с декоративна мазилка в бяло и кафяво, големи прозорци, кокетни балкони и метални парапети.. Дограмата е ПВЦ петкамерна с двоен стъклопакет и к-емисионно стъкло в цвят антрацит. Луксозни общи части, хидравличен пътнически асансьор.

Отопление и топла вода на ток.

Етап на строителство: Фундамент.Въвеждане в експлоатация/АКТ16/ Декември 2027г.

Гъвкави схеми на плащане.



Местоположение: Намира се в кв. Люлин -9.

Транспорт: Метростанция Сливница на 8 минути пешеходно разстояние, Тролей 6 по ул. Търново , Автобуси 108,82,309 по бул. Сливница .

Детски градини:ДГ 95, ДГ 139, ДГ 198

Училища: 37СУ Райна Княгиня , 40 СУ Луи Пастьор , ЧПК по бизнес администрация;

Медицински услуги: 12-ти ДКЦ, МДЦ 'Орион', аптеки.

Магазини и услуги: Супермаркет Т Маркет , Промаркет ,Хипермаркети БИЛА и ЛИДЪЛ , Мебелен магазин 'Зона', магазин Зора ,банки, заведения, бензиностанции и др.

Спорт и почивка: Спортен клуб Мишън' .

L'Artista е първата агенция в България, която предлага не само посредничество при покупко-продажба на недвижими имоти, но и широк спектър от финансови услуги - кредитиране, застраховане, инвестиционни фондове, пенсионно осигуряване и други, които осигуряват стабилност за Вашето бъдеще.

Намерете всичко, от което се нуждаете за вашите имоти и финансова сигурност на едно място!
Особености
Тухла
Асансьор
С гараж
Контрол на достъпа
За контакт:
0877888804
Агенция:
ЛЕ АРТИСТА
0877888804
ЛЕ АРТИСТА logo
В imot.bg от 2024 г.
leartista.imot.bg
Адрес:
област София, гр. София, бул. България 58, ет. 2
http://leartista.bg
ИЗПРАТИ ЗАПИТВАНЕ
ИЗПРАТИ ЗАПИТВАНЕТО

Продава 2-СТАЕН
град София, Люлин 9
Обява: 1b175811806346186

184 500 €
360 850.64 лв.
История на цената
(2 005 €, 3 921.44 лв./m2)

Цената е с включено ДДС
ЗАПАЗИ ОБЯВАТА

Местоположение: град София, Люлин 9

Допълнителни данни за имотите в района и сравнение с други райони

Покажи

Период

и 5 месеца

* Средните цени са определени чрез медианна стойност