Обяви 0 За нас Контакти
Продава 2-СТАЕН
град София, Овча купел
222 222 €
434 628.45 лв.

(2 710 €, 5 300.30 лв./m2)
Цената е с включено ДДС
История на цената
Коригирана в 12:47 на 24 април, 2026 год.
Обявата е посетена 719 пъти.
Площ:
82 m2
Етаж:
5-ти от 6
Газ:
ДА
ТEЦ:
НЕ
Строителство:
Тухла, Ще бъде въведен в експлоатация 2027 г.

Описание на имота:


L'Artista представя двустаен апартамент в новострояща се сграда в кв. Овча Купел.
Моля, циттирайте този код: 1176
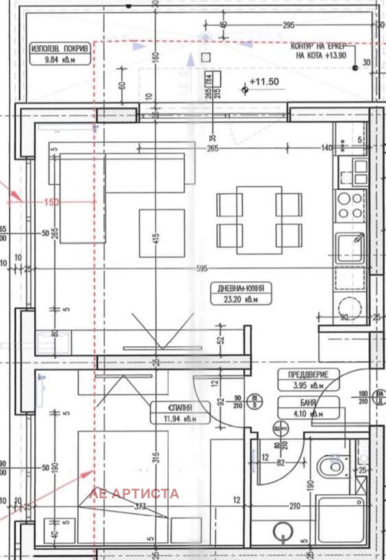
Разпределение:
предверие
дневна с кухня
спалня
баня + WC
балкон
Към апартамента има и складово помещение - 3.17 кв. м - отделно от общата квадратурата
Обща квадратура: 82.3 кв. м (65.64 кв. м - чисто)
Схеми на плащане (60/30/10 или 50/40/10)
АКТ 16 - пролет 2027 г.

Предимства на локацията: бърз достъп до Околовръсен път, магазин Фантастико, 66-то СУ, аптеки, магазини, заведения за хранене

Апартамента ще бъде издаден на Ш3, с луксозна фасада на сградата с облицовки от HPL плоскости, стъклени парапети, монтирани радиатори и газово котле. Остъкляването е изпълнено с 6-камерна PVC дограма Deceuninck - система Elegant, цвят Антрацит двустранно.
При бани и спални помещения е предвидена шумоизолация от минерална вата.
Външните ограждащи стени са изпълнени от тухлена зидария Wienerberger.
Асансьор от реномирания испански производител ORONA, пригоден за 8 лица.

В сградата има още: двустайни апартаменти, тристайни, самостоятелни гаражи (на цени от 43 652 евро) и подземни паркоместа (на цени от 38 090 евро)

*L'Artista e първата агенция в България, която предлага не само посредничество при покупко-продажба на недвижими имоти, но и широк спектор от финансови услуги - кредитиране, застраховане, инвестиционни фондове, пенсионно осигуряване и други, кото осигуряват стабилност за Вашето бъдеще.
Намерете всичко, от което се нуждаете за Вашите имоти и финансова сигурност на едно място!
Особености
Тухла
Асансьор
С гараж
С паркинг
Саниран
За контакт:
0877888804
Агенция:
ЛЕ АРТИСТА
0877888804
ЛЕ АРТИСТА logo
В imot.bg от 2024 г.
leartista.imot.bg
Адрес:
област София, гр. София, бул. България 58, ет. 2
http://leartista.bg
ИЗПРАТИ ЗАПИТВАНЕ
ИЗПРАТИ ЗАПИТВАНЕТО

Продава 2-СТАЕН
град София, Овча купел
Обява: 1b177453517131616

222 222 €
434 628.45 лв.
История на цената
(2 710 €, 5 300.30 лв./m2)

Цената е с включено ДДС
ЗАПАЗИ ОБЯВАТА

Местоположение: град София, Овча купел

Допълнителни данни за имотите в района и сравнение с други райони

Покажи

Период

и 5 месеца

* Средните цени са определени чрез медианна стойност