Обяви За нас Контакти
Продава 3-СТАЕН
град София, Дружба 1
218 400 €
427 153.27 лв.

(1 950 €, 3 813.87 лв./m2)
Цената е с включено ДДС
История на цената
Публикувана в 20:10 на 4 ноември, 2025 год.
Обявата е посетена 398 пъти.
Площ:
112 m2
Етаж:
4-ти от 6
Строителство:
Тухла, Ще бъде въведен в експлоатация 2027 г.

Описание на имота:


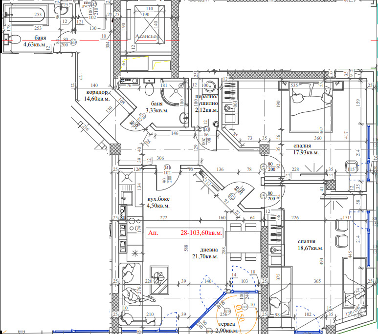
L Artista Ви представя за продажба тристаен апартамент с обща площ 112 кв.м, от които чистата площ е 103,60 кв.м.

Имотът се намира на 4-ти етаж.

Реф. 714

📍 Локация:

Жилището се намира в кв. Дружба 1 в непосредствена близост до Дружбенското езеро едно от най-зелените и предпочитани места за живеене в района. Сградата е нова, с очакван Акт 16 в началото на 2027 г.

Районът се отличава с отлична инфраструктура и удобен достъп както до центъра на София, така и до Цариградско шосе и Околовръстния път. В непосредствена близост се намират:

Метростанция Дружба и спирки на автобуси и трамвай, осигуряващи бърз достъп до всички части на града

Училища и детски градини, включително 148. ОУ и ДГ 113

Големи хранителни магазини Kaufland, Lidl, Billa, както и малки квартални обекти

Аптеки, банки, заведения и зелени площи за отдих и спорт

🏠 Разпределение:

Просторна дневна с кухненски бокс 26,20 кв.м

Коридор 14,60 кв.м

Баня с тоалетна 4,63 кв.м

Спалня 18,67 кв.м

Спалня 17,93 кв.м

Тераса 2,90 кв.м

Баня с тоалетна 3,33 кв.м

Мокро помещение 2,12 кв.м

🚗 Паркоместа:

Сградата предлага възможност за закупуване на паркоместа:

Подземни 23 000

Надземни 20 000

За повече информация и огледи се обадете на телефон: 0877888804

Имотът впечатлява с функционално разпределение, простор и отлична локация в един от най-търсените райони на София в близост до Езерото в Дружба 1, с прекрасен баланс между спокойствие, зеленина и удобства на градския живот. Подходящ е както за семейно жилище, така и за инвестиция.
Особености
Тухла
За контакт:
0877888804
Агенция:
ЛЕ АРТИСТА
0877888804
ЛЕ АРТИСТА logo
В imot.bg от 2024 г.
leartista.imot.bg
Адрес:
област София, гр. София, бул. България 58, ет. 2
http://leartista.bg
ИЗПРАТИ ЗАПИТВАНЕ
ИЗПРАТИ ЗАПИТВАНЕТО

Продава 3-СТАЕН
град София, Дружба 1
Обява: 1c176227983027858

218 400 €
427 153.27 лв.
История на цената
(1 950 €, 3 813.87 лв./m2)

Цената е с включено ДДС
ЗАПАЗИ ОБЯВАТА

Местоположение: град София, Дружба 1

Допълнителни данни за имотите в района и сравнение с други райони

Покажи

Период

* Средните цени са определени чрез медианна стойност